一花一木,
一光一幔,
皆是对生活思考之下的人生适配,
在点滴中提升生活品质,
优化生活习惯。
项目坐标 | 龙光阳光华府
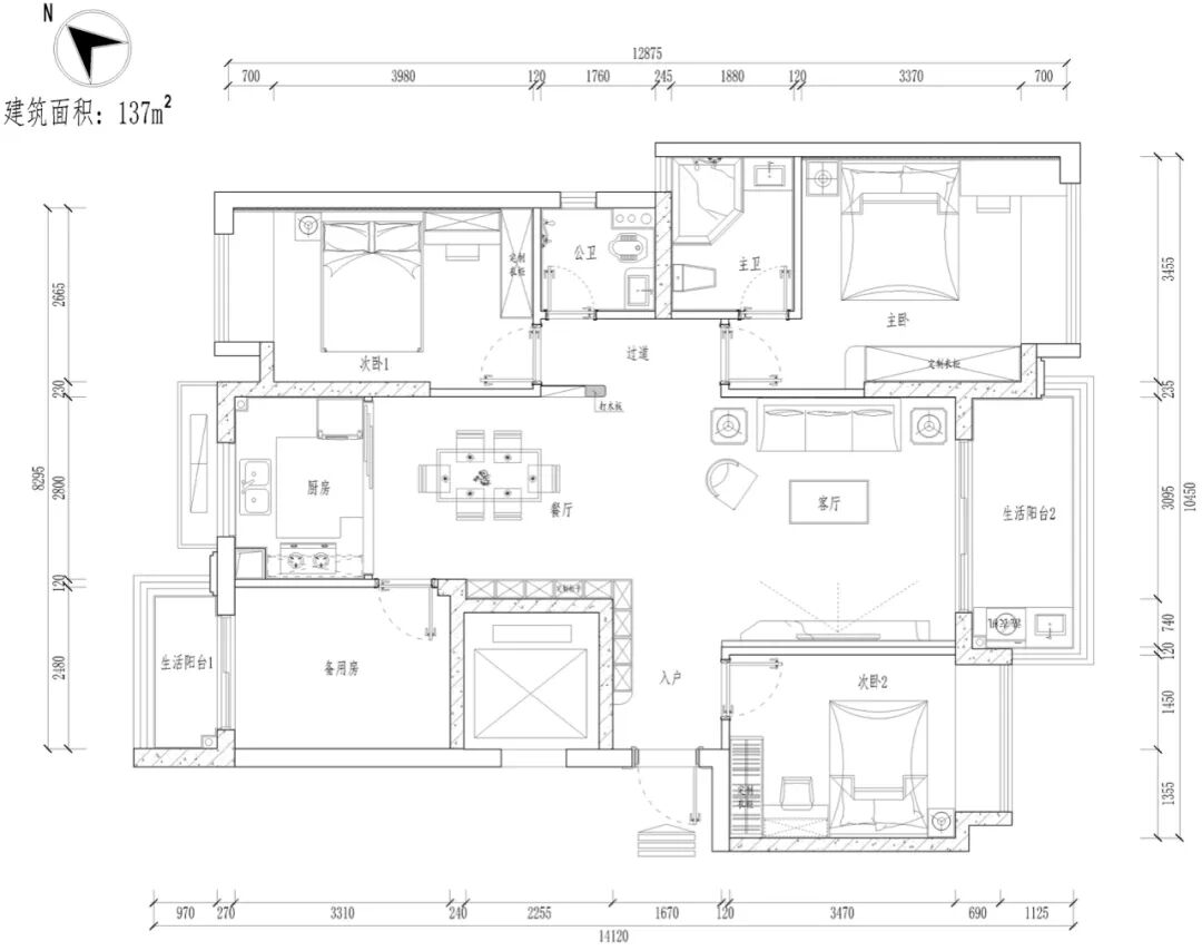
项目面积 | 137m²
项目类型 | 住宅
主要材料 | 护墙板、线灯、长虹玻璃、柔光砖、木地板砖
设计机构 | 潮州星艺装饰工程有限公司
施工机构 | 潮州星艺装饰工程有限公司
DESIGN SPECIFICATION
设计说明
设计师通过对居住者在空间中互动关系的细致设想,反复推敲布局,再把陈设元素中的材质、纹理、色彩交织碰撞,最终营造了空间丰富的视觉层次效果,设计上摒弃了繁复的摆设,用简洁舒适的语言勾勒出生活的质感,错落有致的陈设细节,增添空间的艺术内涵,一种雅逸的生活态度,于无形中铭刻于内,使空间具有“简于形,奢于心”的深刻审美内涵。
.
# A LIVING ROOM
- 客 厅
自然之诗
岁月无痕
光影空间
沙发背景墙以护墙板与线形灯的融合,在不同材质的运用下,硬与柔的碰撞,给人以无限的静谧平和,大面积的落地窗,打造出更为通透的视觉效果,让光与影在此处交融,营造出一派岁月静好的惬意。The sofa background wall is the combination of the wall protection plate and the linear lamp. Under the application of different materials, the collision of hard and soft gives people infinite tranquility and peace. The large-area floor to ceiling windows create a more transparent visual effect, let the light and shadow blend here, and create a quiet and comfortable atmosphere.
清风朗月
凝萃时光
静谧温暖
巧妙搭配多种材质,在迥然不同的质感之间和谐相处,空间与人产生的互动关系,在开放式区域更加明显,延续非凡的气质,是现代风尚又是宁静深邃。Skillfully match a variety of materials to get along harmoniously between different textures. The interactive relationship between space and people is more obvious in the open area, continuing the extraordinary temperament, which is both modern fashion and quiet and profound.
.
# DINING ROOM
- 餐 厅


生活,一半是烟火,一半是清欢
极窄边框的酷咖色玻璃酒柜,辅以内置灯带点缀,搭配白色中间镂空的餐边柜,在颜色的冲撞下提升了整体质感,彰显业主高端的生活品味,让每一次的就餐变得温馨而浪漫。The cool coffee glass wine cabinet with extremely narrow frame, complemented by the built-in light band, and the white hollow side cabinet in the middle, improve the overall texture under the impact of color, highlight the owner's high-end life taste, and make every meal warm and romantic.
.
# MASTER BEDROOM
- 主 卧
主卧空间用浅色奠定空间沉稳格调,轻柔纱帘盛满阳光,令人卸下一身的疲惫,于此简奢空间,所有的元素都蕴藏着居者卓然的审美品味。The master bedroom space uses light colors to lay a stable style of the space. The soft gauze curtain is filled with sunshine, which makes people take off their fatigue. In this simple and luxurious space, all elements contain the outstanding aesthetic taste of the residents.
图文编辑 I 陈莉莉
Graphic editing I Lily Chen