滨江华府|倾倒时光·浪漫醉人

  • 案例风格:
  • 法式
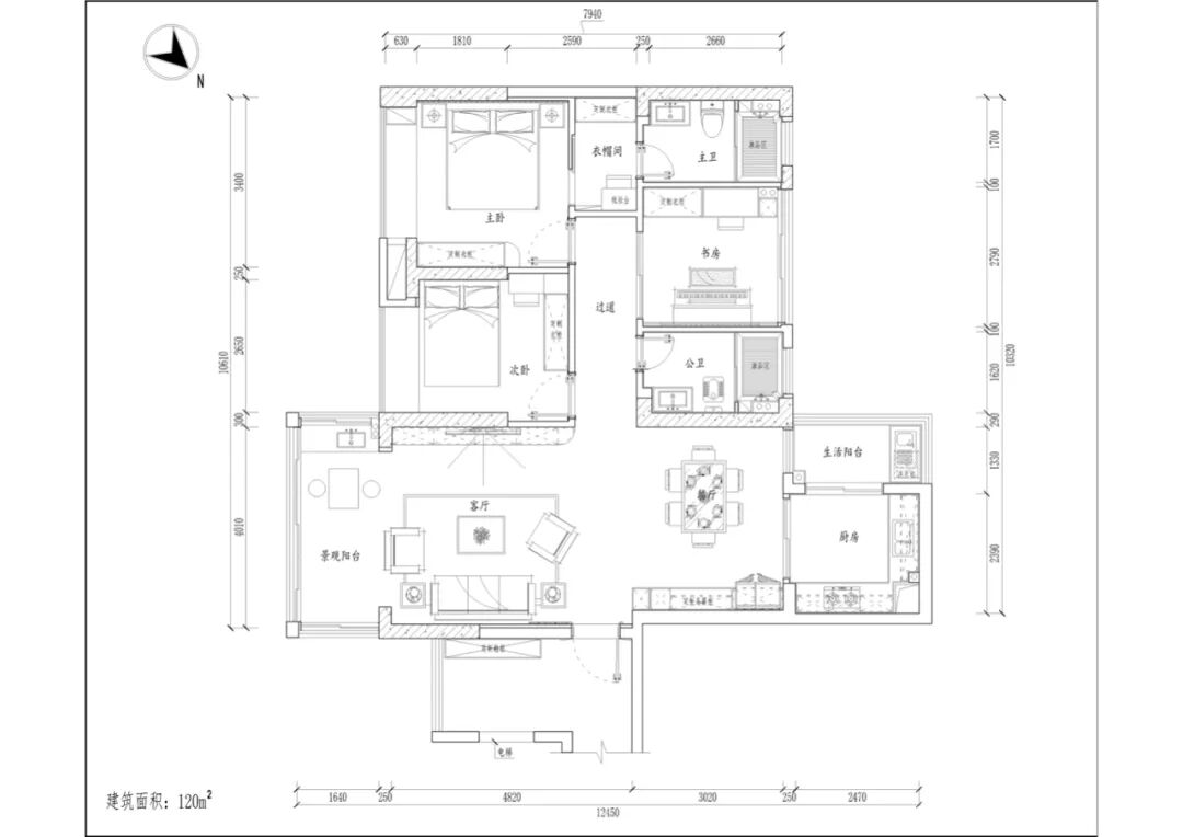
  • 案例面积:
  • 120
  • 楼盘名称:
  • 滨江华府
  • 所在城市:
  • 潮州市

本案设计信息

——————

Design information



项目名称 | 滨江华府

项目面积 120㎡

风格:法式

主要材料 | 大理石、艺术漆、线条灯、木质踢脚线、木纹砖

设计机构 | 潮州星艺装饰工程有限公司

施工机构 | 潮州星艺装饰工程有限公司


图片


计说明

法式家居充满浓浓的生活仪式感,每一个细节处都让空间的意象更加丰满,在细节处散发高贵典雅的魅力。业主选择用法式细腻高雅的氛围塑造福宅,就是为了满足生活里的自在随性,活出自我彰显个性更体现自己对美感的追求和典雅品味。

01

LIVING ROOM

客厅




拾光

每一个创意都有着独立的灵魂在空间自由生长。空间本身以及家具、饰品,即使拥有不同的肌理,都能呈现相似的格调——高级、艺术。

图片



图片


图片





法式风格最鲜明的主调就是强调优雅,好似香水引人入胜,前中后三种香氛不一样的体验就是交给时间打磨出的不拘一格独特的自我表达。

The most distinctive theme of French style is the emphasis on elegance, which is like an attractive perfume. The different experience of the first, middle and last three fragrances is the unique self-expression polished by time.




图片





电视背景墙整体以简洁舒适为主,将电视与储物柜相结合,将娱乐与储物融合,布置上业主收集的摆件,个人风格完美呈现。

The TV background wall is mainly simple and comfortable. It combines TV with lockers, integrates entertainment and storage, and decorates the decorations collected by the owner, presenting a perfect personal style.




02

AISLE

过道

图片





摒弃了传统意义上繁复的奢华效果,简化了室内的线条,将法式风与现代风进行了多元化的演绎,诠释出浪漫与艺术的气息,达到最本质的精髓。

It abandons the complicated luxury effect in the traditional sense, simplifies the indoor lines, performs a diversified interpretation of French style and modern style, interprets the atmosphere of romance and art, and achieves the most essential essence.




03

MASTER BEDROOM

主卧

图片





空间呈现出被时光所赋予的温柔雅致,除了具有时尚感的线条灯,浪漫的粉色系床头背景也相呼应的设置了内嵌式灯带,不仅起到美化造型和空间的作用,也让空间更有层次感,渲染出精致时尚的室内氛围。

The space presents the gentleness and elegance endowed by time. In addition to the fashionable line lights, the romantic pink bedside background is also echoed by the embedded light belt, which not only beautifies the shape and space, but also makes the space more layered, rendering a delicate and fashionable indoor atmosphere.





04

SECONDARY RECUMBENT

次卧

图片





阳光拂过,窗明几净,淡雅舒心,次卧对于空间充分利用,在追求舒适实用的同时,也通过简洁时尚的搭配,由内而外地散发温馨气息。

With the sun blowing, the window is bright and clean, elegant and comfortable. The second bedroom makes full use of the space. While pursuing comfort and practicality, it also exudes a warm atmosphere from inside to outside through simple and fashionable collocation.




05

SECONDARY RECUMBENT

书房

图片





书房利用原建筑结构借为室内设计的部分,巧妙合理,安静的房间里摆放着质感的书桌椅及优雅气质的钢琴,丰富了空间的线条感和层次感。

The study uses the original building structure as part of the interior design. It is ingenious and reasonable. The quiet room is equipped with textured desks and chairs and elegant piano, which enriches the sense of line and hierarchy of the space.






图片

图文编辑 I 陈莉莉

Graphic editing I Lily Chen


COPYRIGHT © 2019 潮州市星艺装饰工程有限公司 ALL RIGHTS RESERVED 技术支持:微派网络科技

预约设计

上门量房