海博熙泰·光影之间,时序的光泽

  • 案例风格:
  • 轻奢
  • 案例面积:
  • 120
  • 楼盘名称:
  • 海博熙泰
  • 所在城市:
  • 潮州市

设计在设计之外,情感在空间之中,以沉默的律动为空间的营造手法,在空间布局和私宅营造的过程中,以克制的设计手法打造一个静的韵律。空间的质感外表平静,却承载了生活里的丰富。


TITLE
玄关

图片

本案采用了简美装饰风格,以功能舒适为导向,空间做了合理细致的规划。“简美”是我们对生活的希翼,希望一切回归本真,“简”并不意味着简单、单调和生活内容的删减。而是直接表达我们对生活的热爱。简美风格的特点是将设计的元素、色彩、照明、原材料等简化到最少的程度,但是对材料的色彩质感要求很高,简约大气,让人感觉舒适温暖。

TITLE
客 厅

图片

简约而不简单,能够经受时间的沉淀和洗礼,温馨舒适又不矫柔造作,这就是很多朋友喜欢简美风格的理由。本案摒弃了繁华的装饰,整体采用明快的色调,设计风格上结合现代家具,从复杂到简单,从整体到局部,每个地方都显得干净利落,打造个性品味的生活态度。

图片

简美将一切都简化,却在设计细节上更用心和贴心,给人一种从身到心,都轻松自在、舒适温暖的感觉。整体明亮的空间里,无论是吊灯还是地板都没有琐碎多余的设计,开阔的空间布置带来良好的采光,温馨舒适的氛围满足了业主对家的期待。

TITLE
 主卧

图片

私密性以及舒适性对卧室来说十分重要,大面积采用素雅的配色和暖色系木地板做搭配,安静内敛,没有太多造作的修饰与约束,在不经意间成就一种休闲式的浪漫,将浪漫的意境与当下的生活方式结合,将休闲元素融入到生活中去。

TITLE
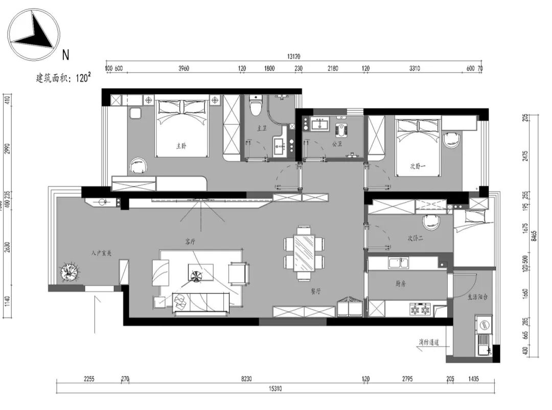
 平面布置图


图片

此案是120m²的毛坯三房,在结构上没有做过多的改造,在原本布局上生活阳台空间偏大,把部分空间规划在书房里,把书房改成卧室,由厨房方向进入生活阳台,就不会在生活阳台出入时影响卧室休息,整体空间布局上,传递出空间的大气与可见体验,营造接纳与包容的居住理念,空间序列上,强调对应关系的和谐和灵动。设计师以其个人鲜明的个性,述说着光影之间的故事,在材质的选取上,从简单与大气入手,简单的外在,内里表达着艺术性的本真。





预约设计师

COPYRIGHT © 2019 潮州市星艺装饰工程有限公司 ALL RIGHTS RESERVED 技术支持:微派网络科技

预约设计

上门量房